This page describes how to build a Bent C antenna. Over the last 23 years I've tried a lot of antennas in this composite airplane. This antenna gets my seal of approval!
After many tries at a good comm antenna for the fiberglass plane I finally got one that I'm happy with. I tried Dipoles, 1/4 wave verticals, this W thing... all crap. With the antenna shown below I've talked to Key West Navy from Naples FL, 90 miles away perfectly clear, like I was 5 miles away using my ICOM IC200 radio.

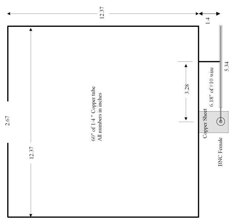
I stole the design from some ham radio book I think and sized it for the aircraft comm band. It is drawn the way it is cause you want the gama match where the BNC connector is to be vertical for vertical polarization. Trust me on that.... I went to the plumbing store and got some 1/4" copper tube. Now the drawing looks real nice but the bends are far from perfect. Who needs a tubing bender just bend then with your thumb, when the tube crushes just laugh and move on. I stuck a piece of wood dowel rod in the 2.67" gap and glued it in. The 5.34" piece of 1/4" copper is shorted to the antenna 3.28" from the center and I used a #10 piece of junk wire to solder to the center of the BNC and just stuck in the tube. I'm sure some tweaking of the 2.67 gap and the gamma match would get closer to perfect but hey, it's good enough for me.
I attached this thing in the back shell just behind the fuselage split line.
If you have Excel click here to see the SWR I measured, pretty cool.
Construction Pictures, should clear up some of the mud!
Questions, email me at
